L'Agence MO vous accueille du lundi au jeudi de 9h00 à 12h00 et de 14h00 à 17h00 et le vendredi de 9h00 à 12h00

02 41 57 77 63

Rénovation

L’Agence MO prend en compte votre configuration existante

Vous souhaitez optimiser la lumière naturelle dans votre maison, améliorer les circulations ou créer une extension parfaitement intégrée à votre habitat existant et dans votre jardin  ? Vous êtes au bon endroit.

 

Cohérence du rez-de-chaussée

Notre architecte diplômée d’un master en architecture peut vous accompagner dans la transformation complète de votre rez-de-chaussée, en repensant chaque espace selon vos usages, votre mode de vie et vos envies. Notre approche globale permet de concevoir un aménagement cohérent, esthétique et fonctionnel, en valorisant chaque mètre carré.

Nous réalisons des plans détaillés et personnalisés, intégrant l’ensemble de vos contraintes techniques (structure, réseaux, lumière naturelle) ainsi que vos habitudes quotidiennes. Notre objectif : créer un intérieur harmonieux, ergonomique et durable.

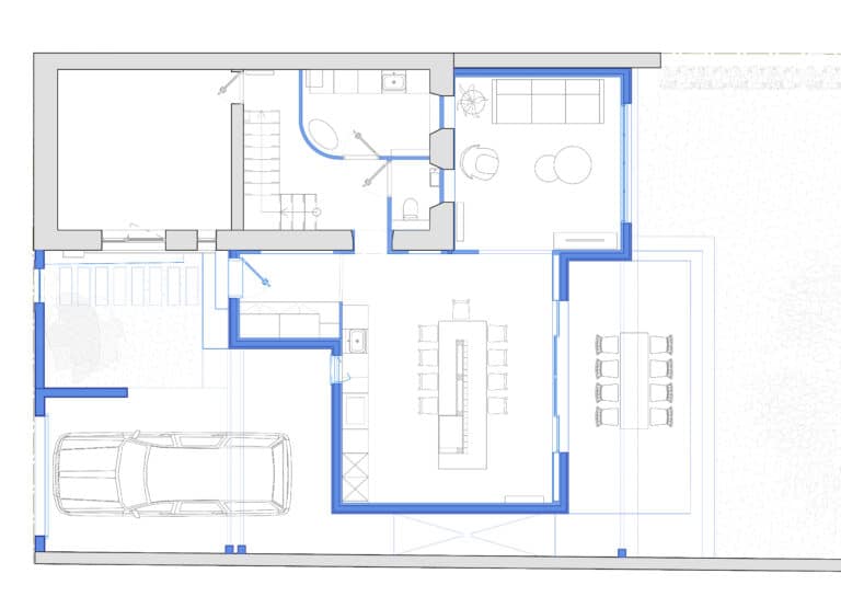
plan d'aménagement pour un projet d'extension avec cuisine

Une vision globale de votre projet

réalisation d'une extension bois

Par exemple, nous pouvons imaginer le déplacement d’une cuisine actuellement sombre vers une extension lumineuse, ouverte sur le jardin. L’espace libéré dans la maison existante peut alors être optimisé pour accueillir une buanderie pratique, une entrée fonctionnelle avec rangements sur mesure, ou encore un espace de transition fluide entre les différentes pièces de vie.

Cuisine intérieure et extérieure - Mobilier de rangement

Dans le cadre de votre projet, nous proposons également une prestation complète incluant la conception, la fourniture et la pose de votre cuisine sur mesure, en collaboration avec notre partenaire Artipôle. Cette collaboration garantit des équipements de qualité, parfaitement intégrés à votre projet architectural.

Nous concevons aussi du mobilier sur mesure : dressings, meubles TV, bibliothèques ou rangements intégrés, afin d’optimiser chaque espace et d’apporter une véritable signature à votre intérieur.

Enfin, dès la phase d’estimation ou lors de l’appel d’offres pour votre projet d’extension, nous intégrons l’ensemble des travaux de rénovation de l’existant. Cela vous permet d’obtenir une vision claire, globale et maîtrisée du budget nécessaire à la réalisation de votre projet.

Go to top of page